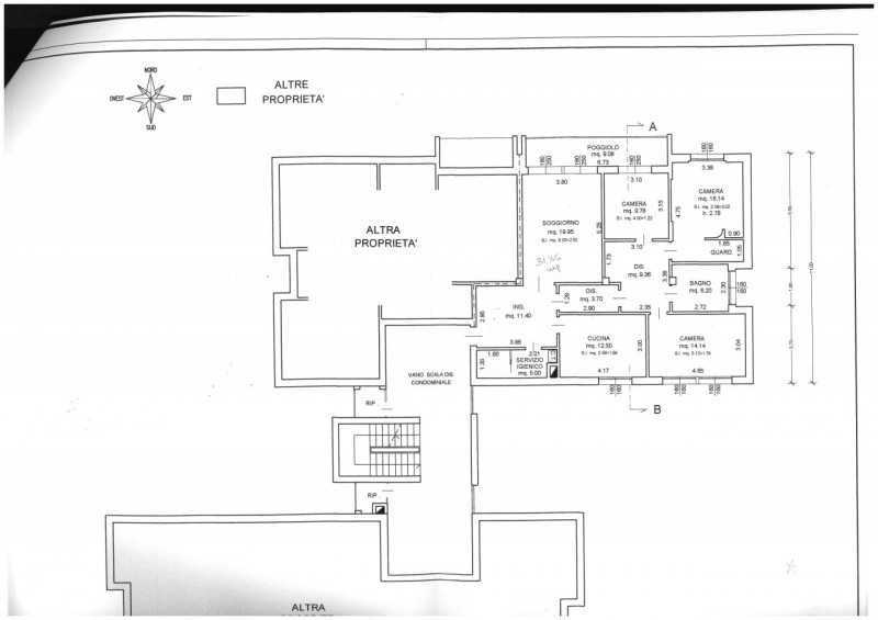
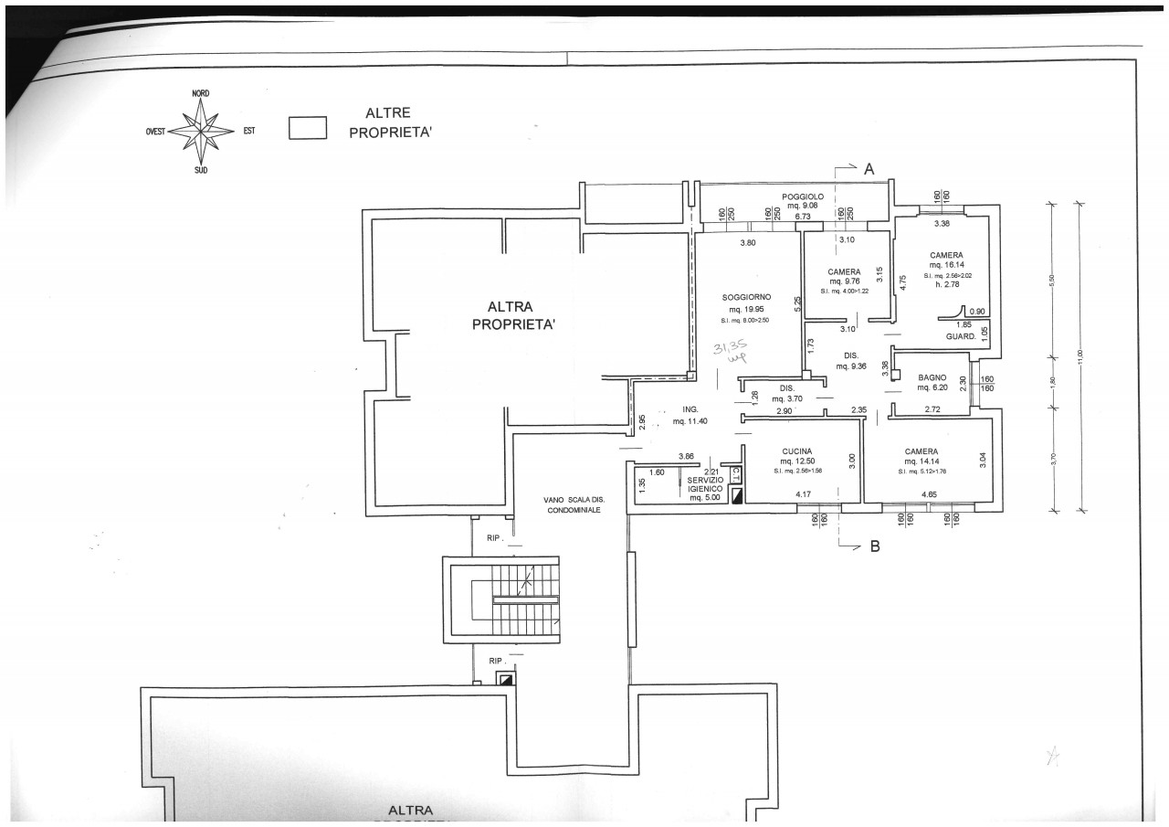
GARDIGIANO DI SCORZE' - APPARTAMENTO 3 CAMERE 2 BAGNI

Nel cuore di Gardigiano, comodo a tutti i principali servizi e immerso nella tranquillità del comune di Scorzè, proponiamo in vendita un interessante appartamento pentalocale di generosa metratura (127 mq) situato al secondo piano (senza ascensore) di una palazzina degli anni '70 ben curata.

L'immobile si presenta con un accogliente ingresso che conduce a un luminoso soggiorno ideale per momenti conviviali. La cucina è separata e abitabile, perfetta per chi ama cucinare. L'appartamento dispone di tre camere da letto: una matrimoniale spaziosa, una doppia e una singola; due bagni funzionali completano la proposta. Inoltre, è presente un poggiolo che offre uno spazio esterno dove godere della vista circostante.

La proprietà include anche un garage singolo al piano interrato ed è dotata delle più moderne comodità come riscaldamento autonomo, aria condizionata con due split per il massimo comfort durante l'estate, impianto d'allarme sia perimetrico che volumetrico per garantire sicurezza totale. Le zanzariere e i serramenti in PVC contribuiscono all'efficienza energetica dell'immobile.

Consegna semi-arredata prevista entro dicembre 2025.
Classe Energetica C – EPgl 108,21 kWh/m² anno.

Questa soluzione rappresenta l'ideale per famiglie o gruppi alla ricerca di spazi ampi e confortevoli senza rinunciare alla comodità dei servizi nelle vicinanze. Non perdere l'opportunità! Contattaci oggi stesso presso la nostra agenzia immobiliare Symbol Immobiliare.

  • Condividi:
Riferimento 4092
Prezzo 169.000 €
Tipologia Appartamento
Contratto Vendita
Comune Scorzè
Zona Gardigiano
Bagni 2
Camere 3
Mq 127m2
Classe energetica
I.P.E 108.21 kWh/mq/anno
2
2
C
108.21
n/d

Mappa

Livelli & Comfort

Livelli Piano intermedio
Cucina arredata
Aria condizionata
Riscaldamento autonomo
Allarme
Animali ammessi

Ambienti

Soggiorno
Cucina
Poggioli 1
Ripostigli 1
Garage

Video